情報更新日:2026年01月07日/広告有効期限:なし
表示閲覧回数(過去30日間):94
お急ぎの方はお電話からお気軽にどうぞ!
076-422-5566 営業時間 / 9:30〜18:00 定休日 / 水曜日
>物件詳細情報
| 基本情報 | |
|---|---|
| 物件番号 | 10007805142 |
| 店舗形態 | 事務所 |
| オススメ業種 | 事務所, 塾・学校・教育関係, 医療関係 |
| 物件名 | 久方ビル 2Fテナントオフィス |
| 物件の状態 | 空き |
| 引越し時期 | 相談 |
| 契約形態と期間 |
普通契約期間:2年間 |
| 所在地・交通 | |
|---|---|
| 所在地 | 富山県富山市久方町-8-43 |
| 交 通1 | あいの風とやま鉄道富山駅 徒歩18分 |
| 交 通2 | 北陸新幹線富山駅 徒歩21分 |
| 賃料 | |
|---|---|
| 賃 料 | 149,600円(税込) |
| 敷 金 |
3ヶ月 |
| 共益費・管理費 | 3,300円(税込) |
| その他月額費用 1 | 水道料 2,200円(税込) |
| その他 | |
|---|---|
| 備考 | 敷地内駐車場4台前後 台数応相談 |
| 建物 | |
|---|---|
| 建物構造 | 鉄筋コンクリート造 |
| 建物階建て |
地上3階 |
| 施工年月 | 1985(昭和60)年 01月 |
| 募集物件の階数 | 地上 2階 |
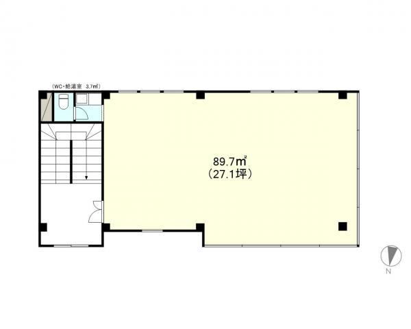
| 契約面積 | 93.40m2(28.25坪) |
| 用途地域 | 近商地域 |
| 設備 | |
|---|---|
| 水道 | 公営 |
| 下水道 | 公共下水 |
| ガス | LPG |
| エアコン | 有り/個別 |
| トイレ | 有/専用 |
| 給湯室 | 有/専用 |
| 床仕様 | タイルカーペット |
| セキュリティ | 無 |
| シャッター | 無 |
| 照明設備 | 有 |
| 内装業者指定 | 無 |
| 駐車場 | |
|---|---|
| 状 況 | 空有 |
| 駐車料金 | 5,500円(税込) |
| 取引情報 | |
|---|---|
| 取引態様 | 媒介 |
| 客付 | 不可 |
この物件をチェックした人はこんな物件も見ています
- 11坪ほどのこじんまりしたスナック、バー向けの店舗です!駐車場4台まで可能、融雪付き駐車場、内見随時受付中です。

富山県高岡市古定塚-8-5
36.97m2(11.18坪)
66,000円(税込)
- 市電沿い!目立ちます。元釜飯屋さんの居抜き物件です。

富山県富山市荒町-5-7
93m2(28.13坪)
220,000円(税込)
- 街中物件、1棟貸しビル。1階部分に車庫があり、複数台駐車可能です。動力有。契約期間5年。

富山県富山市東田地方町2-2-1
383.25m2(115.93坪)
330,000円(税込)
- 50.9坪の貸倉庫 兼 事務所です! 様々な用途で利用可能です

富山県富山市黒瀬-611-1
168.48m2(50.97坪)
231,000円(税込)
- 富山駅北口徒歩3分、2024年竣工のオフィスビル ニーズの高いサテライトオフィス アメニティも充実

富山県富山市牛島町-9-5
191.16m2(57.83坪)
賃料未定
今日チェックした物件
お急ぎの方はお電話からお気軽にどうぞ!
076-422-5566 営業時間 / 9:30〜18:00 定休日 / 水曜日


076-422-5566



















076-422-5566